
Neubau Entsorgungszentrum auf der Deponie Backnang-Steinbach
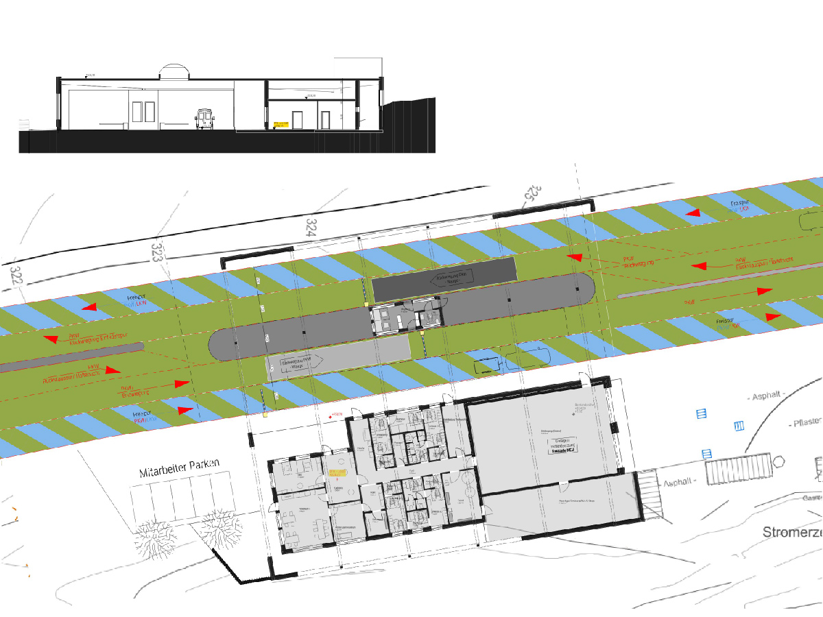
Die Abfallwirtschaft Rems-Murr AöR (AWRM) plant den umfassenden Ausbau des Entsorgungszentrums Backnang-Steinbach. Ziel ist es, durch den Neubau von Betriebsgebäuden sowie die Neugestaltung der Wertstoffannahmestelle die Betriebsabläufe zu optimieren und den steigenden Anforderungen an Effizienz, Sicherheit und Nutzerfreundlichkeit gerecht zu werden.
Im Zuge des Vorhabens sollen moderne und funktional abgestimmte Betriebsgebäude entstehen, die eine sichere, strukturierte und zweckmäßige Betriebsführung am Standort gewährleisten. Gleichzeitig wird das gesamte Annahmekonzept überarbeitet: Neue Verkehrsflächen, klar definierte Be- und Entladezonen sowie optimierte Sammelsysteme tragen dazu bei, die Abläufe für Anliefernde übersichtlicher und komfortabler zu gestalten und gleichzeitig die betriebliche Sicherheit deutlich zu erhöhen.
Mit der Neugestaltung setzt die AWRM ein zukunftsorientiertes Zeichen für eine leistungsfähige, bürgernahe und nachhaltige Abfallwirtschaft im Rems-Murr-Kreis.


